
技術要求: (1) 未注倒角去毛刺; (2) 未注公差尺寸按IT11加工檢驗。
1、 零件的分析
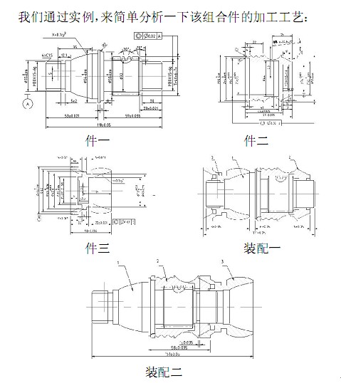
首先: 一看零件圖是組三件套, 要考慮先加工那件零件的那部分其次再加工那部分,對這套組合零件的加工順序在頭腦中有一個清晰的了解。其次該零件圖中的宏程序比較多。再次要考零件的配合精度、形位公差及裝配尺寸。最后在保證各方面多達到加工要求后, 提高加工的效率。
2、 加工工藝的安排。
1.1 分析零件圖紙。根據零件的材料、形狀、尺寸精度還有毛坯的形狀合理選擇數控機床。
1.2 確定加工方案。通過對零件圖紙的分析, 在頭腦中應對各加工流程有一定的清晰的思路, 抓住主要矛盾確定加工先后順序。準備加工中所使用到的刀具及工量具以減少輔助時間。
1.3 數學處理。應及時的對圖紙中要算點的地方通過數學方程計算出坐標。以保證加工的順利進行。
1.4 加工中對切削參數的合理選用。
3、 工藝路線的設定
3.1 加工件二夾著 60× 60 毛坯伸出30 長車端面打孔打通。
3.2 粗加工外圓到 59× 30 的長度。
3.3 直接加工件二左邊的 50、 40、 36 的內孔M30× 1.5 內螺紋的內輪廓粗精加工分開至尺寸要求并倒角。
3.4 加工M30× 1.5 的內螺紋至尺寸要求。
3.5掉頭夾著以粗加工過的 59的外圓光端面取總長, 加工 42的外圓和錐度粗精加工分開至尺寸要求并倒角。
3.6加工件二右邊的 34的內孔粗精加工分開至尺寸要求并倒角。
3.7 加工件三夾著 60× 60 的毛坯伸出 30 長車端面打孔并打通。
3.8 粗加工外圓到 59× 30 的長度。
3.9 加工件三的右邊的內拋物線粗精加工分開至尺寸要求。
3.10 掉頭夾著以加工過的 59 的外圓光端面取總長,后加工 58 的外圓、150 度的倒錐、46、40 的槽、后直接先加工 M30× 1.5螺紋的內孔其次加工內錐和端面槽粗精加工分開至尺寸要求。
3.11 加工件一夾著 60× 60 毛坯伸出 70 長光平端面首先加工件一的右端 (輪廓包括M30× 1.5的外螺,30的外圓、 Tr40× 6-7e的梯形螺紋、 槽、 R2的圓弧、50、 54的外圓) 車至67長粗精加工分開至尺寸要求并倒角。
3.12 將件二已經做好的內螺紋旋在件一的外螺紋上加工件二的外輪廓(旋轉凹橢圓、 正弦曲線) 粗精加工分開至尺寸要求并倒角。
3.13 夾件一的梯形螺紋光端面取總長加工件一的左端的外輪廓 (M30× 1.5的外螺紋、32 的外圓、 外拋物線) 粗精加工分開至尺寸要求并倒角。
3.14 將件三的已經加工好的內螺紋與件一的外螺紋相配合加工件三的外輪廓 (R28 的圓弧) 粗精加工分開至圖紙尺寸要求并倒角。
3.15 加工完取下工件, 清理工作臺。
4、 加工中出現的問題
有于該零件是組合零件對各個零件之間的配合有很高的要求,還有些單個零件不可能通過一次性裝夾完成所有的工藝,需要通過多次的裝夾才能完成或者通過某些輔助工序才能加工完成,所以對單個零件的長度方向的尺寸很難達到要求。如果加工中遇到上述類似問題將會大大延長加工時間, 生產效率將會大大降低。 解決方案:
4.1 零件之間的配合問題。上圖見件二、 件三兩個不同的零件用常規的單件一次性的裝夾是不可能完成的必須通過多次的裝夾或通過與件一相配合加工完成。
4.2 對單個零的總長如何保證精確。以件三為例由于該零件的內外輪廓不可能通過一次性的裝夾加工完成必須通過多次裝夾,多次的裝夾對該零件的同軸度產生了不一致因此第二次裝夾的時的工件會產生很大的 跳動, 對操作者對總長的選取會產生很大的誤差 。
本文由 伯特利數控文章 整理發表,文章來自網絡僅參考學習,本站不承擔任何法律責任。
2024-11
本文以組合式六角亭模型為實例,分析工藝難點與加工可行性,指出該模型的加工難點是模型形狀不規則和整體剛性差,并通過設計新的工藝方案解決加工難點,完成了模型整體的加工。新的加工工藝有助于提高加工效率和精度,為五軸數控加工提供了一個典型案例,對于五軸加工中心數控加工也具有指導作用和重要… [了解更多]
2024-11
宇匠數控 備注:為保證文章的完整度,本文核心內容由PDF格式顯示,如未有顯示請刷新或轉換瀏覽器嘗試,手機瀏覽可能無法正常使用!本文摘要:通過對混聯五軸加工中心自適應深度學習控制方法的 研 究,可 知 此 方 法 的 創 新 之 處 在 于:1)建 立 了 機 床 的 運 動 學 … [了解更多]
2024-11
宇匠數控 備注:為保證文章的完整度,本文核心內容由PDF格式顯示,如未有顯示請刷新或轉換瀏覽器嘗試,手機瀏覽可能無法正常使用!本文摘要:1)本文建立了基于轉角向量和雙弦弓高的局部能量光順算法,該方法以刀心點光順前后最大許用偏移量作為約束,通過計算拐角處微小線段局部能量最優解,可使… [了解更多]
2024-11
在機測量技術由于其成本低、檢測效率高、無需二次裝夾等優勢被廣泛用于零件加工測量當中,使得五軸加工中心和五軸鉆攻中心,同時又兼具測量功能。在機測量系統的構成如圖1所示,硬件部分主要是由高精度探頭、信號接收器、機床整個本體,軟件部分由機床控制系統、測量軟件等組成[8]。待零件加工完成… [了解更多]